
Hans Kammerer
© Foto Rotraud Harling DGPh, Stuttgart

Hans und Maiti Kammerer
© Foto Rotraud Harling DGPh, Stuttgart
Stiftung
Hans Kammerer war Architekt, Stadtplaner und Professor. Er hat ein umfangreiches architektonisches und theoretisches Werk hinterlassen. Neben seiner engagierten Lehrtätigkeit u. a. an der Universität Stuttgart hat er zusammen mit Walter Belz 1972 das Architekturbüro Kammerer + Belz gegründet. Zu den zahlreichen Projekten des Büros zählen das GENO Haus und die Calwer Passagen in Stuttgart.
1999 gründete er zur Erinnerung an seine Frau Maiti und zur Förderung von Wissenschaft, Forschung und Kultur auf dem Gebiet der Architektur, insbesondere im Wohnungsbau die gemeinnützige Hans und Maiti Kammerer Stiftung. Die Stiftung erlangte durch Verfügung des Stuttgarter Regierungspräsidenten vom 31. Mai 1999 ihre Rechtsfähigkeit und hat ihren Sitz in Stuttgart.
Neben der Organisation der stiftungseigenen Vortragsreihe „Hans Kammerer Vorlesungen“ liegt ein weiterer Förderschwerpunkt in der Ausbildungsförderung für den herausragenden studentischen Nachwuchs und für vielversprechende, besonders begabte Berufsanfänger auf dem Gebiet der Architektur.
Werkarchiv
Das Büro Kammerer + Belz und Partner hat in den vergangenen 66 Jahren eine Vielzahl an Projekten geplant und realisiert. An den bei diesen Projekten entstandenen Plänen, Fotografien, Zeichnungen und Publikationen wird erkennbar, wie viel Arbeit und Organisation hinter dem Büro steckt. Die Werkübersicht soll verdeutlichen, wie wichtig das Schaffen Kammerers und Belz war und wie ihre architektonischen Werke bis heute zahlreiche Städte innerhalb von Deutschland mitgeprägt haben. Durch die Zusammenstellung möchten wir die Erinnerung an Kammerers Arbeit digital festhalten, um somit jedem den Zugang zu seinem Werk ermöglichen. Zahlreiche Bauten des gemeinsam mit Walter Belz geführten Büros prägen bis heute das Stuttgarter Stadtbild, wurden mit renommierten Preisen ausgezeichnet und schrieben wie im Fall der beiden Innenstadtprojekten “Commerzbankerweiterung am Fruchtkasten” und der “Calwer Passage” in den 1970er Jahren Stuttgarter Architekturgeschichte. Im Jahr 2022 wäre Hans Kammerer 100 Jahre alt geworden. Die Dokumentation der Werke ist im Zuge der Ausstellung “100 Jahre Hans Kammerer - Architektur für Stuttgart” entstanden; als wichtige Bestandsaufnahme einer langen Arbeitsphase des Büros, um die sich Hans Kammerer, Walter Belz und viele andere Mitarbeiter*innen in den letzten Jahrzehnten bemüht haben.

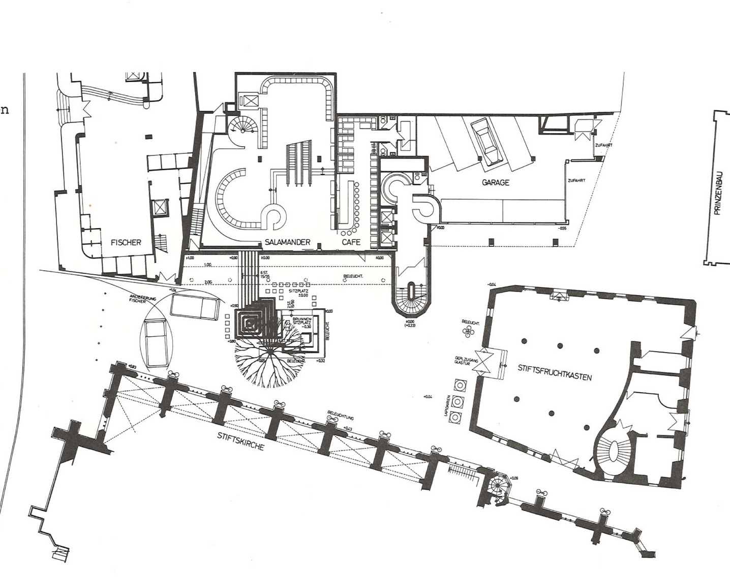
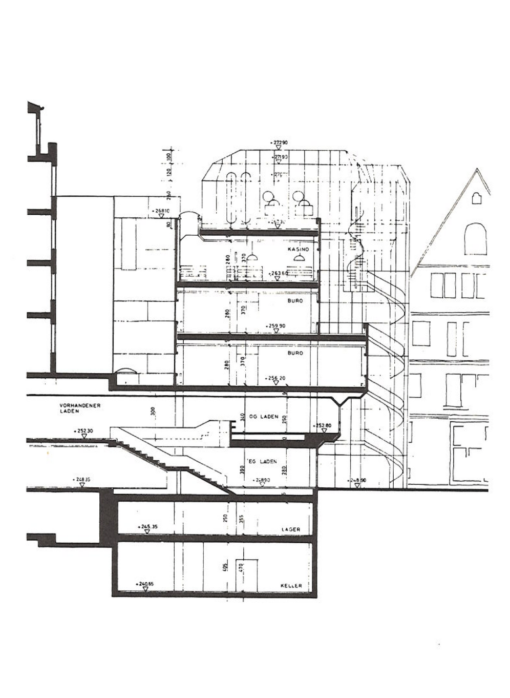
Erweiterung Commerzbank, Stuttgart
Kammerer + Belz, 1972
© Foto Landesamt für Denkmalpflege im RP
Stuttgart, Iris Geiger-Messner

Calwer Passage, Stuttgart
Hans Kammerer und Walter Belz, 1978
© Foto Landesmedienzentrum
Baden-Württemberg, Sven Grenzemann

Personalwohnsiedlung, Bad Wildbad
Kammerer + Belz, 1978
© Zeichnung Kammerer + Belz
Publikation
Neben seiner engagierten Lehrtätigkeit u. a. an der Universität Stuttgart und der Leitung des eigenen Architekturbüros Kammerer + Belz zusammen mit Walter Belz hat sich Hans Kammerer auch theoretisch mit Architektur auseinandergesetzt. Insbesonder mit dem Thema Wohnungsbau, dem er seine umfangreichste Publikation „Wohnen und Wohlstand“ widmete. Darin beleuchtet er die kulturellen, politischen, wirtschaftlichen und historischen Dimentionen des Wohnungsbaus in Deutschland.
Wohnen und Wohlstand
Hans Kammerer, avedition, 1998
Vorträge
| 2025 | Peter Haimerl |
| 2024 | Andreas Hofer40 Jahre Wohnungsbau |
| 2023 | Jürgen Mayer H.Transit, Transition, Transformation |
| 2022 | Markus Allmann, Klaus Jan Philipp, Amber Sayah, Stephan TrübyPodiumsdiskussion 100 Jahre Hans Kammerer (1922–2022) |
| 2021 | Matthias Sauerbruchsiehe: k1.live |
| 2007 | Johannes UhlFörderer du warst super |
| 2006 | Shigeru BanWorks and Humanitarian Activities |
| 2004 | Wolfgang VoigtIm Kern modern? Eine Verteidigung Paul Schmitthenners |
| 2004 | Arno LedererVertreibung des Verborgenen |
| 2003 | Peter FierzArchitektur ist sichtbar |
| 2002 | Manfred SackBauen, wer man ist oder: Über die Kunst, mit Architektur und Stadtbau Identitätsempfinden zu wecken |
| 2001 | Kurt AckermannZur Erinnerung an Hans Kammerer (1922–2000) |
| 2000 | Gabriel EpsteinWohn-Ort |
Personen
Vorstand
Amber Sayah
Prof. Piero Bruno (stv.)
Beiräte
Prof. Dr. Thomas Jocher
Prof. Dr. Klaus Jan Philipp
Ehem. Vorstände und Beiräte:
Prof. Hans Kammerer
Nikolaus Turner
Prof. Arno Lederer
Prof. Dr. h.c. Kurt Ackermann
Prof. Dr. h.c. Max Bächer
Preisträger
| 2025 | Maximilian Sinn |
| 2024 | Patrick Schneider und Thomas Lesch |
Kontakt
Stiftungssitz
Hans und Maiti Kammerer Stiftung
Universität Stuttgart
Institut für Wohnen und Entwerfen
Keplerstraße 11
70174 Stuttgart
Spenden
Commerzbank Fellbach
IBAN DE39 6004 0071 0760 5157 00





















